
Zrkadlová sklenená sauna

Architektonické sklenené riešenie

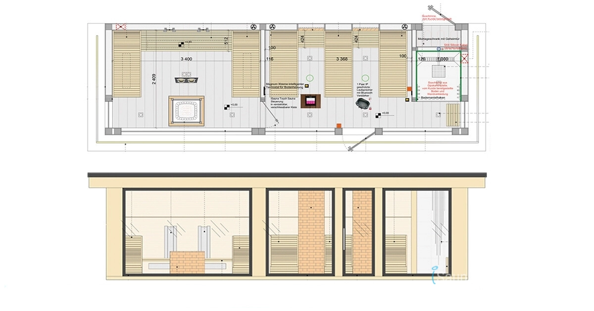
Sky Residence Wellness domček

Zrkadlovásauna

VIP jazdecký areál - Inak ako ostatné

Vonkajšia sauna, wellness dom, mini rekreačný dom

Komplexný návrh jazdeckého areálu

Prémiový saunový zážitok u vás doma